
Abstract
This undergraduate interior design capstone research focuses on understanding how forward-thinking design approaches can improve student success and teacher effectiveness in the classroom environment. Addressing the ever-changing needs of students, this research investigates variables of classroom environments such as the impact of color, lighting, acoustics, technology, space planning, furniture, and biophilia. Understanding these factors in the classroom environment can inspire new approaches to design and class flexibility whilst positively impacting student learning outcomes, teacher effectiveness, and overall well-being.
This capstone research is conducted at a time of change within educational design approaches as they continually aim to determine which factors directly enhance learning environments. Outcomes of the anonymous survey and one-to-one interviews pinpoint concerns about current classrooms and standards that can either positively or negatively impact student motivation, engagement, and overall success. Further, case studies centered around flexibility and biophilia provided knowledge to advance interior solutions in response to the issues of the traditional classroom. Providing successful approaches, these studies resulted in significant increases in student engagement, collaboration, happiness, and academic achievements. Analysis of qualitative, data-informed research and ideation provides new approaches and through the lens of flexibility and biophilia.
The Creative Agenda hones in on two key findings from the Literature Review and Research Agenda, biophilia and flexibility, which are proven to aid in student success, teacher effectiveness, and overall well-being. From this, four prototypical classrooms from each pivotal grade level are reimagined to provide insight into designing future-optimized classroom learning environments. The promotion of flexibility through adjustable, moveable furniture and biophilia through access to natural light, views to nature, and material application, drives design decisions. Diagrams, renderings, and additional graphics provide broad ideas for solutions to reimagine classrooms into optimized learning spaces. Moreover, these proposed solutions present future opportunities in K-12 design and answer the research question, How can forward-thinking design approaches improve student success and teacher effectiveness in the classroom environment?
Keywords: Classroom Design, Biophilia, Flexibility, Optimized Learning Environments, Student Engagement, Teacher Effectiveness
Concept Development
The traditional classroom has negatively impacted both the students and teachers within its walls. Moving past the “one-size-fits-all” approach, we can begin to redefine classroom design through the lens of flexibility and biophilia. This focus on well-being and adaptability aims to create engaging, comfortable, and welcoming spaces that enhance learning and overall achievement. Supported by the keys to optimal learning environments, these biophilic and flexible design applications can bring about unforeseen opportunities and success within, and beyond classroom walls.
Together, biophilia and flexibility can positively impact student and teacher success within learning environments. Accomplished through the implementation of adjustable, moveable furniture, lighting controls, materiality, natural light, and views to nature, the spaces will bring a new balance that doesn’t just support academia, but also well-being.

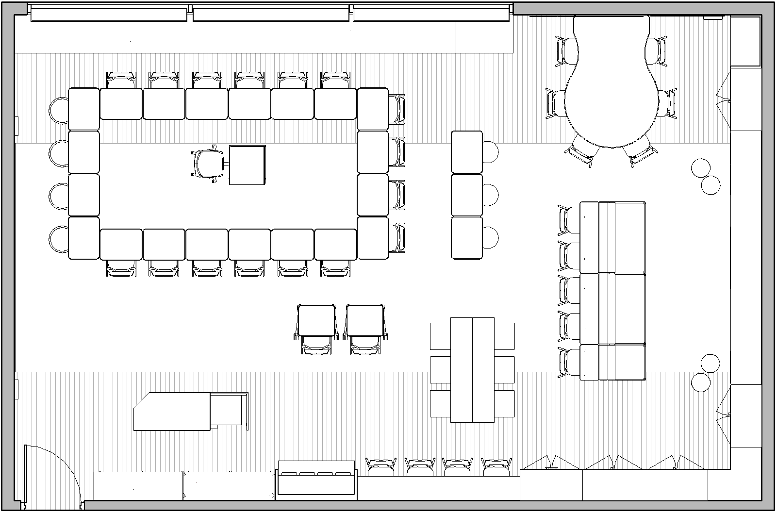
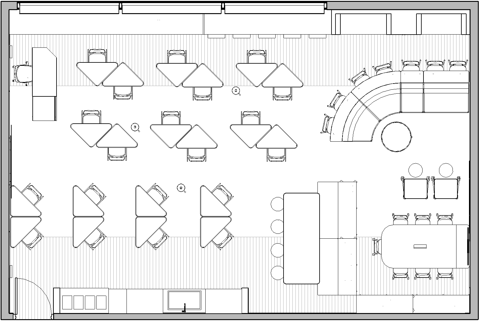
Kindergarten - 2nd Grade Classroom









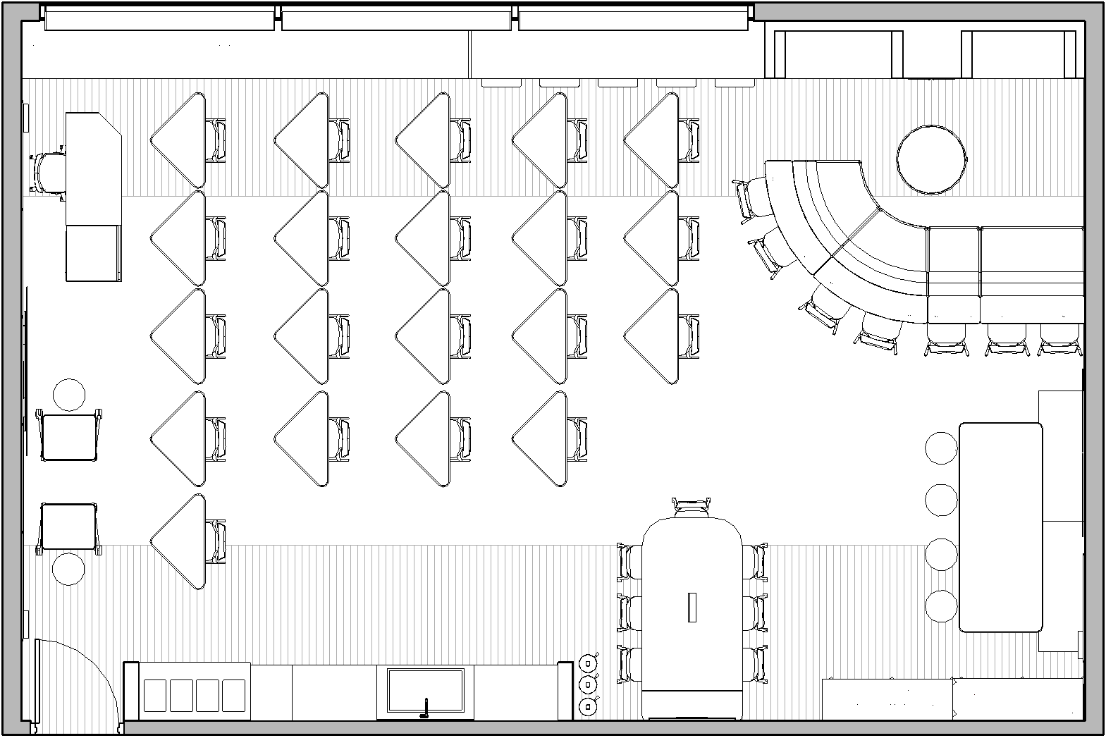
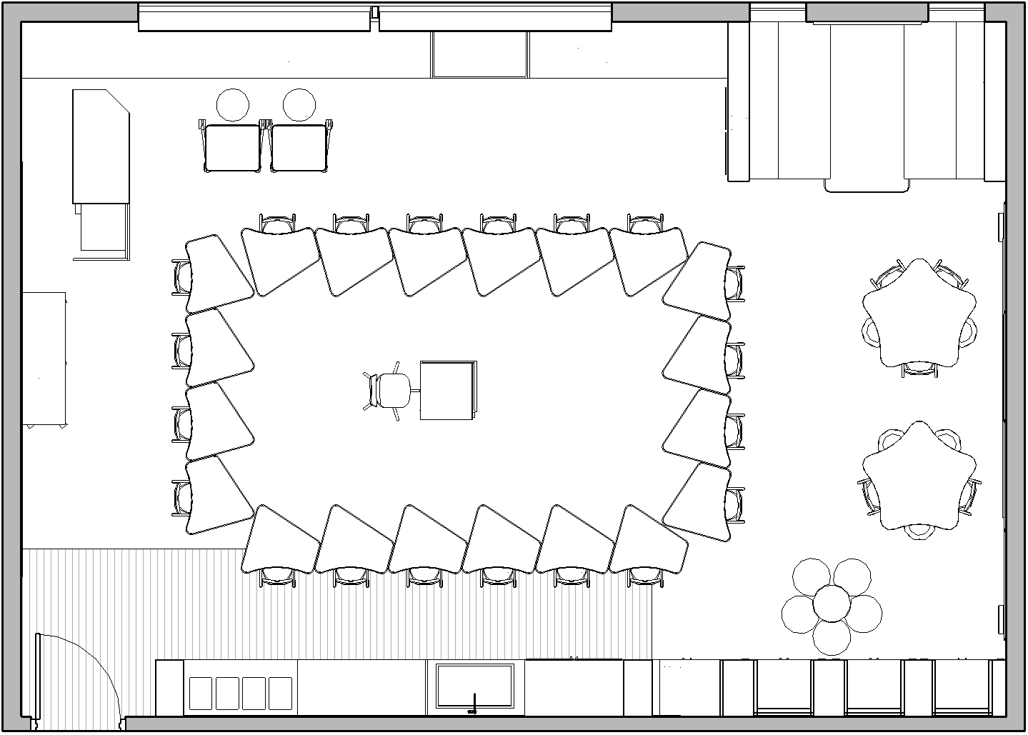
3rd Grade - 5th Grade Classroom









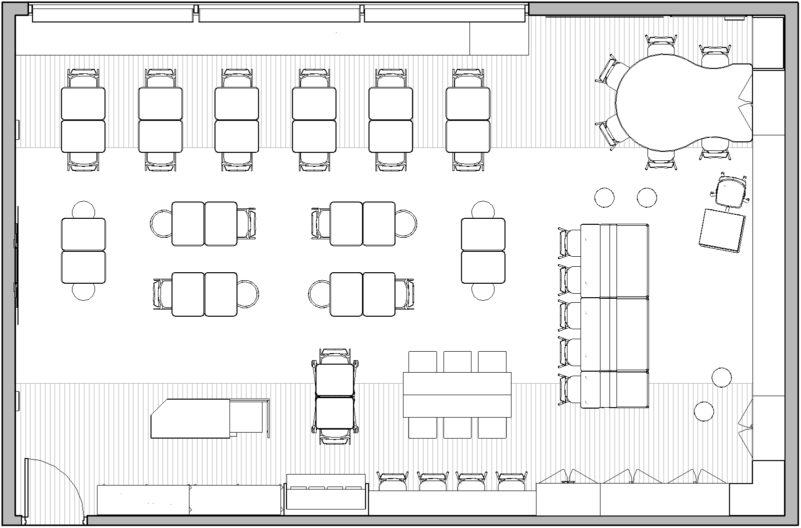
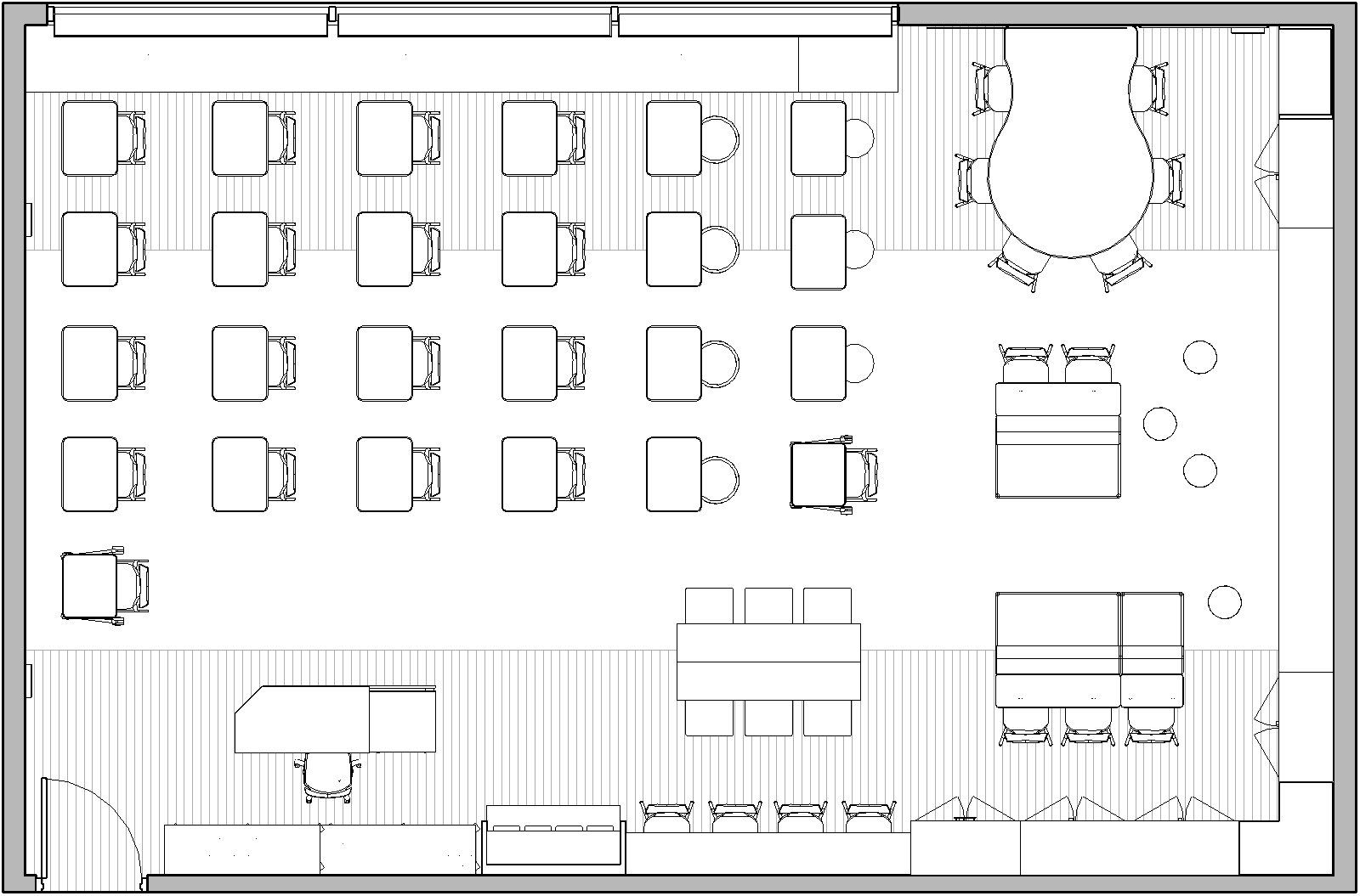
6th Grade - 8th Grade Classroom







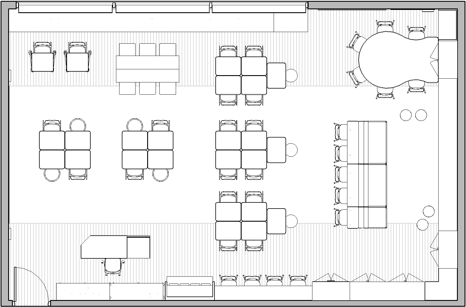
9th Grade - 12th Grade Classroom









Project Extensions: Learning Corridors
Hallways already take up large amounts of usable space within a building, and with schools looking to maximize efficiency and exploration, they have been looked to in creating learning spaces outside of the classroom. Utilizing corridors as learning spaces doesn’t replace learning in the classroom, but instead increases the flexibility of underutilized spaces within schools and gives a visually different atmosphere for students and teachers. So far, they have been shown to improve the quality of the school by locating learning both within and outside of classrooms, exposing students to differentiated learning environments, and ultimately getting the most square footage out of projects. Accomplished through foldable, mobile tables, media displays, and walls, as well as writing surfaces, learning corridors are pushing the boundaries of learning.


